Plateau de Bureaux

MONCHY-LE-PREUX (62118), ZI EST

MONCHY-LE-PREUX 62118
295 m2 environ - 10 places de parking
Référence : E3
Découvrir

DESCRIPTION GENERALE

Accès Exceptionnel

Situé sur la ZI Est à Monchy-le-Preux (62118), ce plateau bureau entièrement rénové bénéficie d’une accessibilité optimale au croisement des axes A1/D939 : à seulement 11 km d’Arras (D939), 29 km de Cambrai et 52 km de Lille (A1). Idéal pour une implantation stratégique sans contraintes de trajet.

Mode de Chauffage

Electrique et clim réversible.

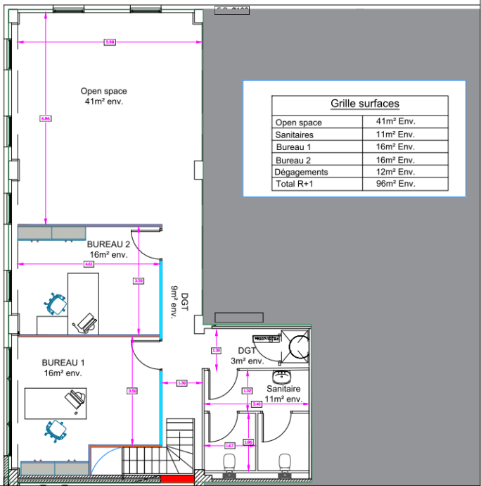
Surface et Aménagement

295 m² environ, entièrement rénovés et agencés pour maximiser la productivité : open space RDC de 139 m² + locaux sociaux (59 m²), et à l’étage open space 41 m² + 2 bureaux (32 m²) + sanitaires (23 m²). 10 places de stationnement incluses.
Possibilité de cloisonnement, 

CONDITIONS GENERALES DE LOCATION

Loyer annuel HT/HC : 41 300 €, pour un rapport qualité-prix imbattable dans cette zone dynamique.
Bail 3/6/9 ans, paiement trimestriel par prélèvement automatique.
Modalités de paiement : Trimestre et d’avance
Dépot de garantie : 3 mois de loyer HT/HC
Impôt foncier : 2840€ (base 2026)

06.88.97.88.52
MONCHY-LE-PREUX 62118
communication@bouttemy.immo

4 + 13 =